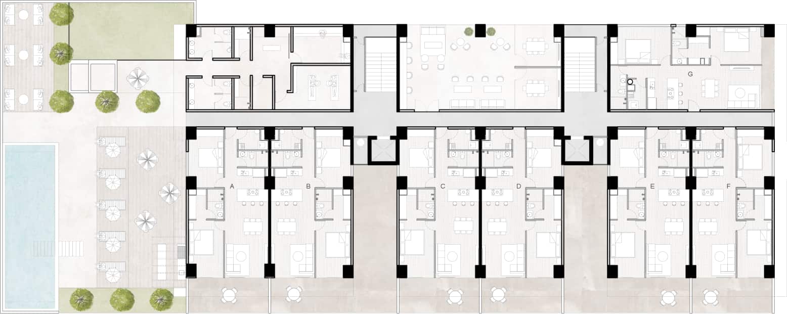
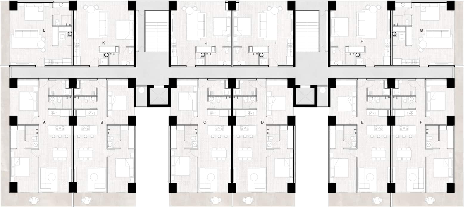
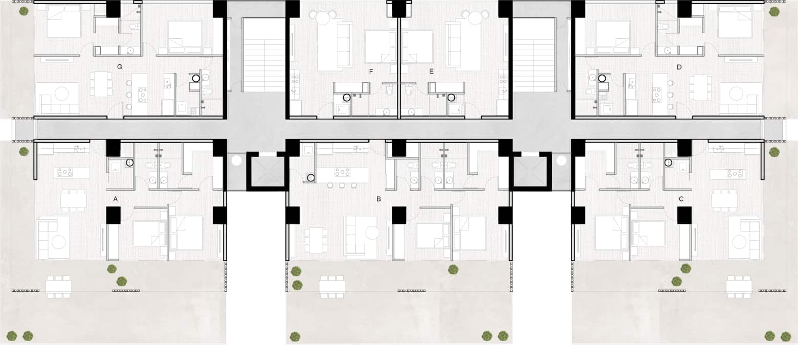
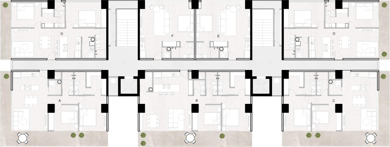
Bienvenido a GIA Funcional Living, un exclusivo desarrollo vertical, ubicado a unos minutos del mar en el corazón de Puerto Vallarta. 63 lujosos departamentos con impresionantes vistas al océano Pacífico para que disfrutes cada amanecer y cada atardecer.
Modernas instalaciones pensadas para tu comodidad y privacidad. Amplios espacios para relajarte, trabajar o divertirte. Servicios y amenidades de primera para que vivas una experiencia única.
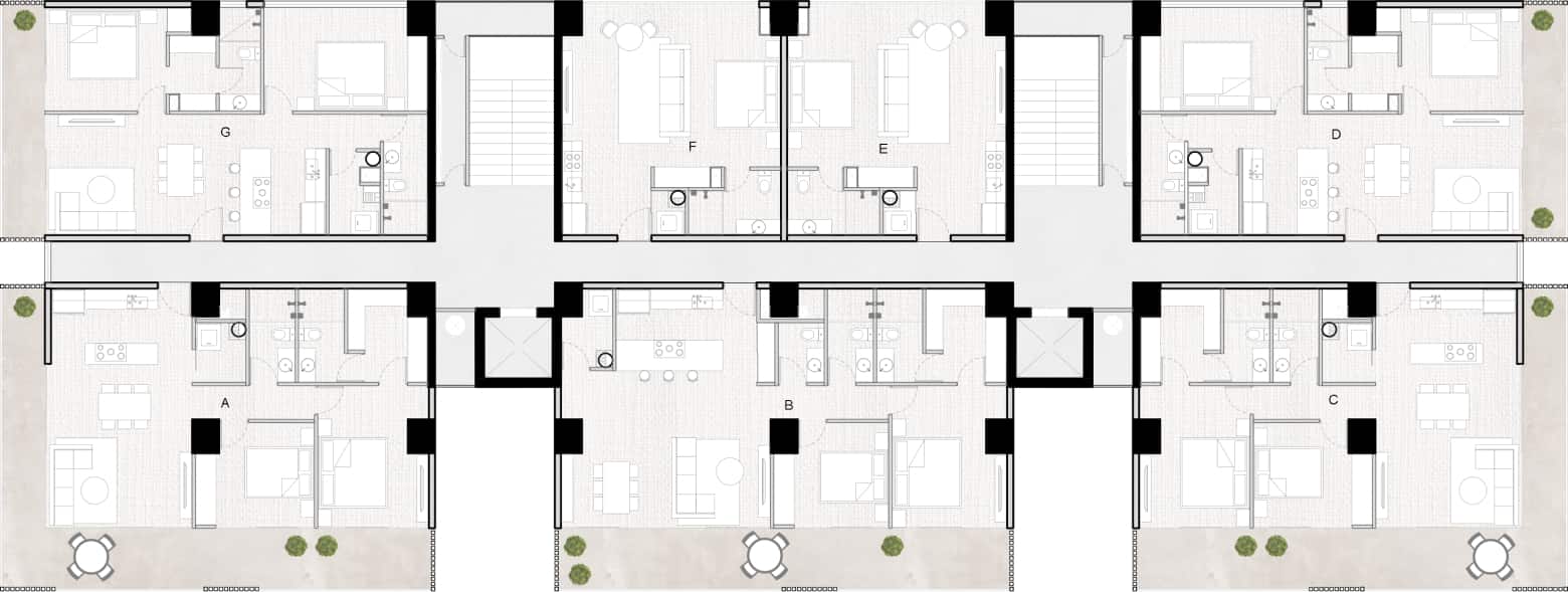
TIPO 1
BALCÓN CHICO

TIPO 1
BALCÓN L

TIPO 1
TERRAZA CHICA

TIPO 1
TERRAZA GRANDE

TIPO 2
BALCÓN

TIPO 3
BALCÓN

TIPO 4

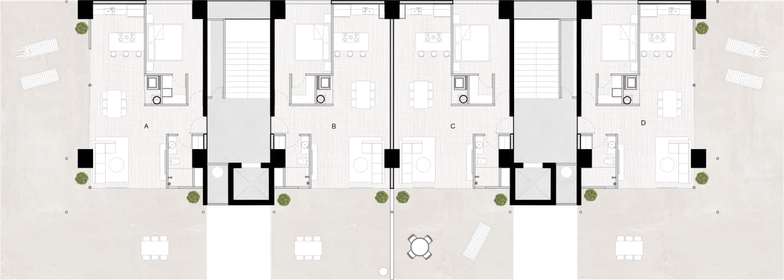
TIPO 5
BALCÓN L

TIPO 5
TERRAZA GRANDE

TIPO 6
BALCÓN L

TIPO 6
TERRAZA GRANDE

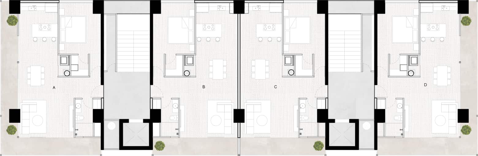
TIPO 7
BALCÓN CENTRAL

TIPO 7
BALCÓN L

TIPO 7
TERRAZA FRONTAL GRANDE

TIPO 7
TERRAZA L GRANDE



















¡Gracias por contactar con nosotros!
Nos pondremos en contacto contigo muy pronto.